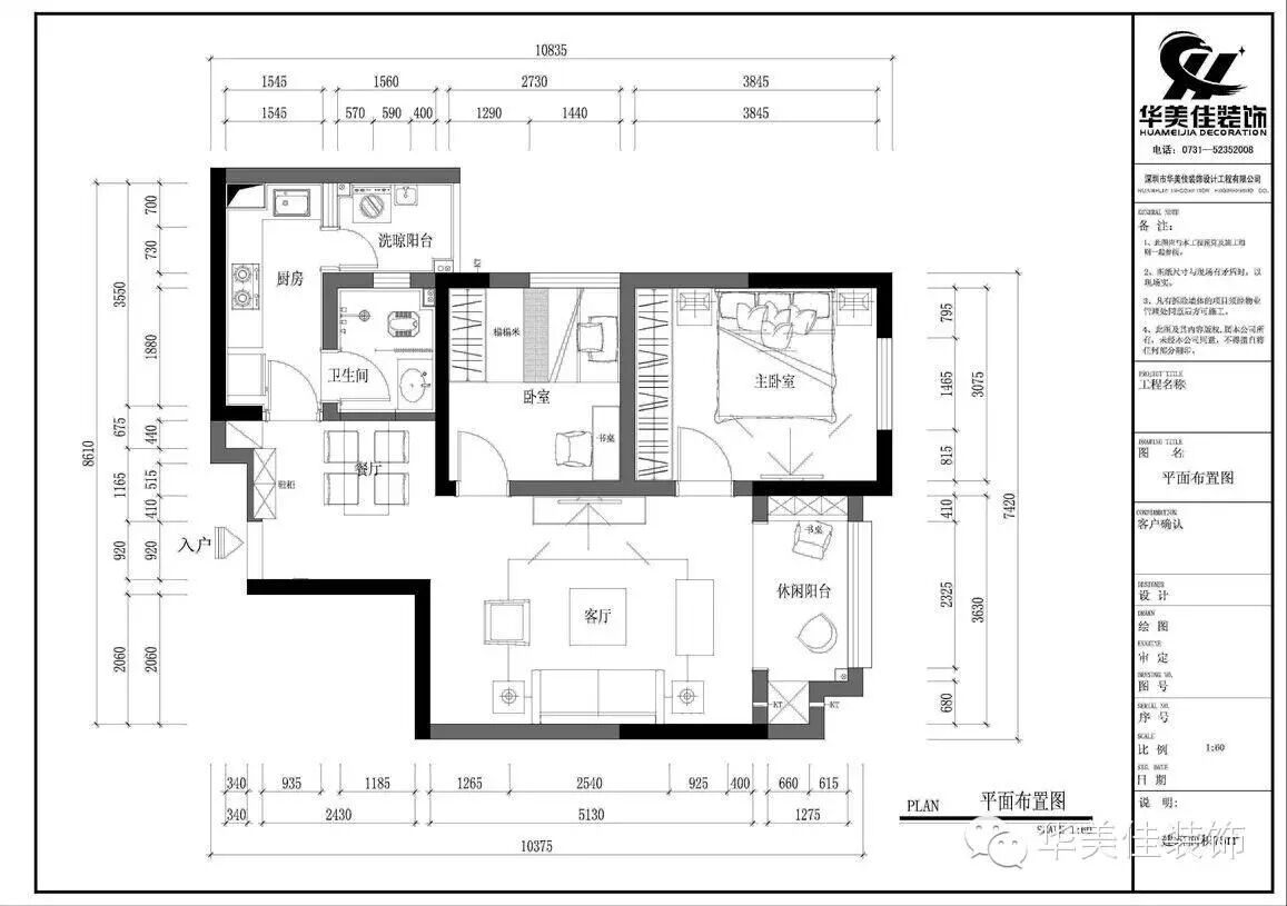
项目名称:新天地A1户型
项目地点:湘潭步步高新天地
项目面积:75平方米
设计公司:深圳华美佳装饰湘潭分公司
主持设计:蒋雷
主要材料:墙布、水曲柳面板、仿实木地板
工程总造价:76800
简单的生活,一束淡雅的兰花,一杯清新的绿茶,嘻嚷的电视声,厨房传来阵阵余香!生活,我们要的其实很简单!温馨、幸福也许就在这简单里不经意中呈现。
简单的生活,需简洁的设计。75平的小户型,收纳体系的合理设计显得尤为重要!在合理规划的同时,怎样营造一种理想的家居生活环境,也是设计师规划的重点环节!根据客户自身的需求不同量身定做,在不同的空间营造不同的生活感受。比如宽松的客厅、别致的装饰画、松软的布艺沙发,在周末的午后躺在沙发上,慵懒的睡个午觉,享受着阳光的沐浴。这一切都显得这么随和、自然而温馨!空间规划、选材、选色,在设计师眼中这些都需要简洁、规整、严谨的逻辑思维来规划!简单的生活,是一种态度!
施工现场照片:










湘潭步步高新天地简欧、中式、现代简约、美式、地中海风格样板房征集中...所有样板房均以成本价格回馈给业主!并享受华美佳装饰三大新品体验!报名预约热线:18607319277
0731-52352008于经理
地址:湘潭市潭九路口五矿尊城1108-1109(新天地正对面)


